パークコート六本木ヒルトップ リノベーション物件
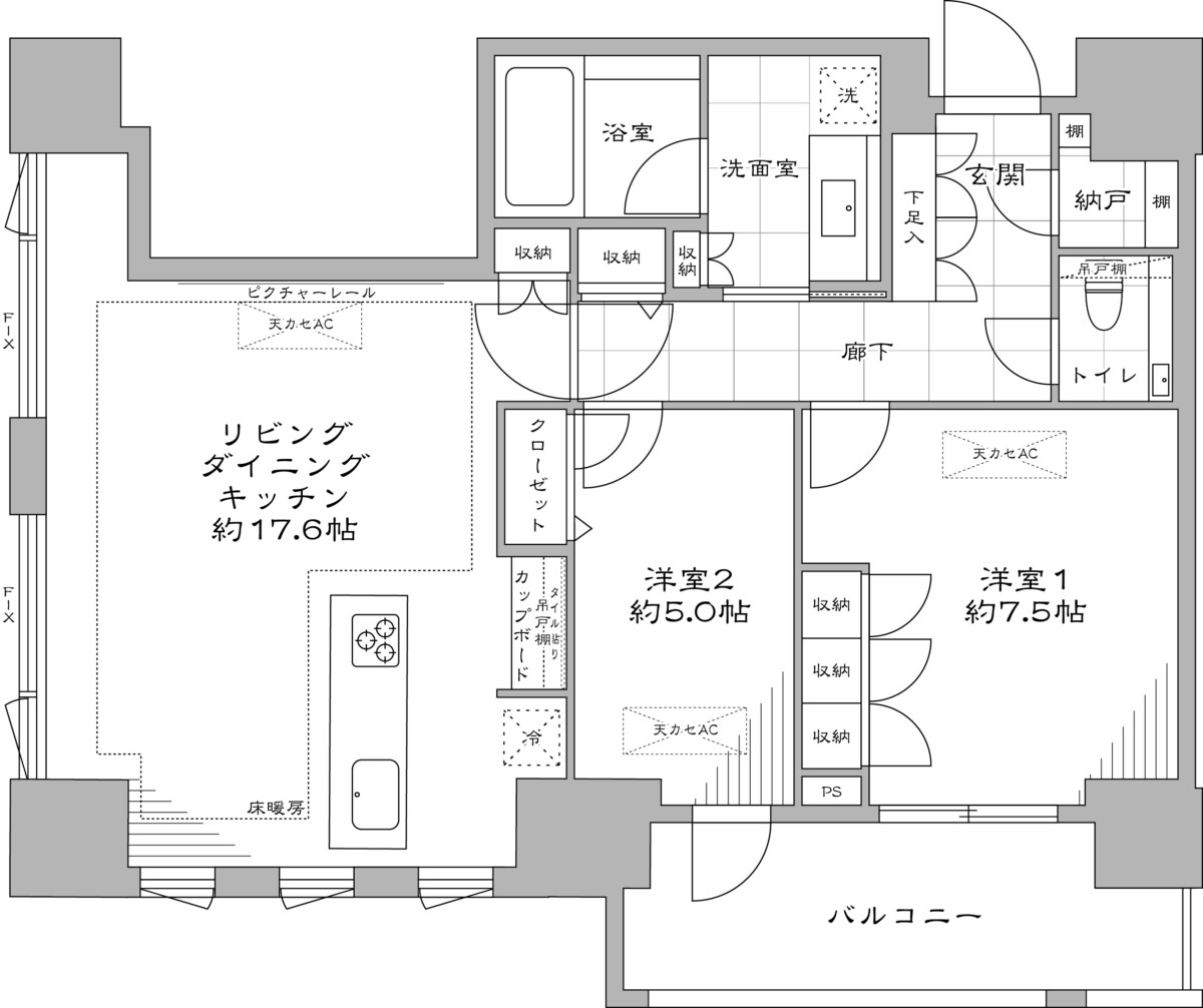
2026年2月リノベーション完了済!北東北西角部屋、71.37㎡、2LDK、7階部分、3駅3路線利用可
■リノベーション内容
・システムキッチン新規交換交換(ミーレ製食洗機、浄水器、ディスポーザ付)
・浴室換気乾燥暖房機能付オートバス新規交換(TOTO上級ユニットバス シンラ仕様)
・タンクレス高機能トイレ新規交換
・3面鏡付洗面化粧台新規交換
・フローリング全室(LD床暖房付)
・壁・天井クロス全室張替え
・建具新規交換、全室スイッチ新規交換
・ダウンライト新規設置
・各部屋ビルトインエアコン新規設置
・給湯器交換
・ハウスクリーニング他
■充実の管理サービス
24時間有人管理 ・コンシェルジュサービス ・宅配ボックス
・各階ダストステーション
■安心構造のレジデンス
・柱や梁が少ないシミズハイブリッドコアウォール制震システム
・東京都初の長期優良住宅認定マンション
■ペット飼育可(細則あり)
■三井不動産レジデンシャル旧分譲、清水建設旧施工、
-
所在地
東京都港区六本木1丁目 -
交 通
東京メトロ南北線 / 六本木一丁目駅 徒歩3分
東京メトロ日比谷線 / 神谷町駅 徒歩6分
東京メトロ銀座線 / 溜池山王駅 徒歩9分 -
築年月
2012年8月 -
間取り
2LDK -
専有面積
71.37m² -
価 格
49,980万円
FACILITY充実した共用施設
-
屋上:スカイコート、スカイラウンジ、スカイガーデン
1階:クラブラウンジ、ガーデンラウンジ、ライブラリー
地下:アクアガーデン































